Sobre o imóvel
Informações do corretor associado
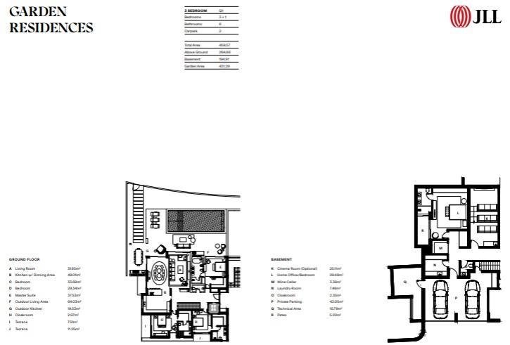
Apartamento T3+1, novo, com 460 m2 de área bruta privativa, 2 lugares de estacionamento, varandas, terraço e jardim com piscina privativa, no One Green Way, na Quinta do Lago. O Empreendimento One Green Way é um novo projeto localizado na Quinta do Lago, que oferece privacidade e exclusividade dignas de um resort. Com vistas fenomenais sobre o campo de golfe norte, este condomínio privado conta com 89 residências contemporâneas, sendo 27 moradias e 62 apartamentos, divididos em três tipos diferentes: Horizon Residences (T4 a T6), Panorama Residences (T3 e T4) e Garden Residences (T3 e T4).
!Estas informações refletem a opinião do corretor associado e não necessariamente da Coelho da Fonseca, que não se responsabiliza por eventuais divergências ou prejuízos decorrentes do uso dessas informações.

Alvaro Marco Coelho Da Fonseca
Corretor(a) associado
Conte com atendimento consultivo e total discrição para encontrar o imóvel ideal.

Mantenha sua liquidez e amplie suas possibilidades.
A Coelho é correspondente bancária do Itaú, o maior banco da América Latina, com taxas exclusivas para seus clientes.
Galeria Completa





O Empreendimento
Conheça o condomínio exclusivo que abriga este imóvel excepcional. Infraestrutura completa e localização privilegiada.







